Urus

(74) Saint-Jean-de-Sixt, France

Construction d'une Résidence de 9 Logements – Chalet à Saint-Jean-de-Sixt

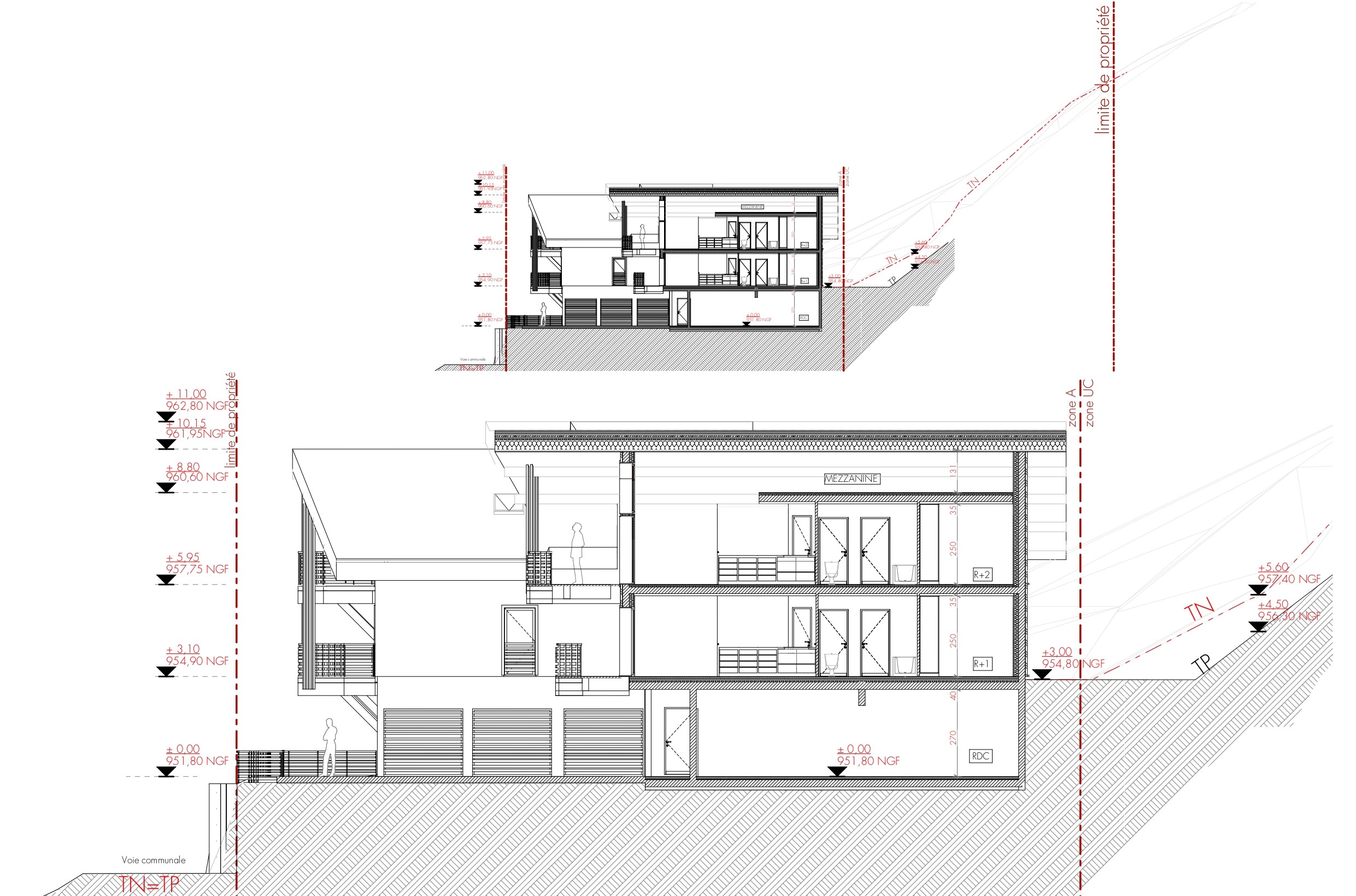
Le projet de construction de cette résidence à Saint-Jean-de-Sixt se distingue par une approche architecturale qui allie tradition montagnarde et modernité. Composée de 9 logements, la résidence adopte le style chalet en intégrant des éléments contemporains pour créer des espaces de vie fonctionnels, esthétiques et durables.
Les bâtiments sont implantés de manière à s’adapter à la topographie du site, avec une organisation qui maximise les vues et préserve l’intimité des habitants. Les volumes sont répartis sur plusieurs niveaux, et chaque appartement bénéficie de vues panoramiques sur les montagnes environnantes, tout en étant conçu pour offrir une grande luminosité grâce aux larges baies vitrées. Ces ouvertures permettent une fluidité entre l’intérieur et l’extérieur, créant des espaces de vie ouverts et lumineux, avec des terrasses et balcons offrant des espaces extérieurs privatifs. Le projet recherche une parfaite fusion entre tradition et modernité à travers des matériaux choisis.